MLSC758383 Duplex, Playa Del Cura, Alicante
- 489,000 €
 
Przegląd
- Duplex
 
Opis
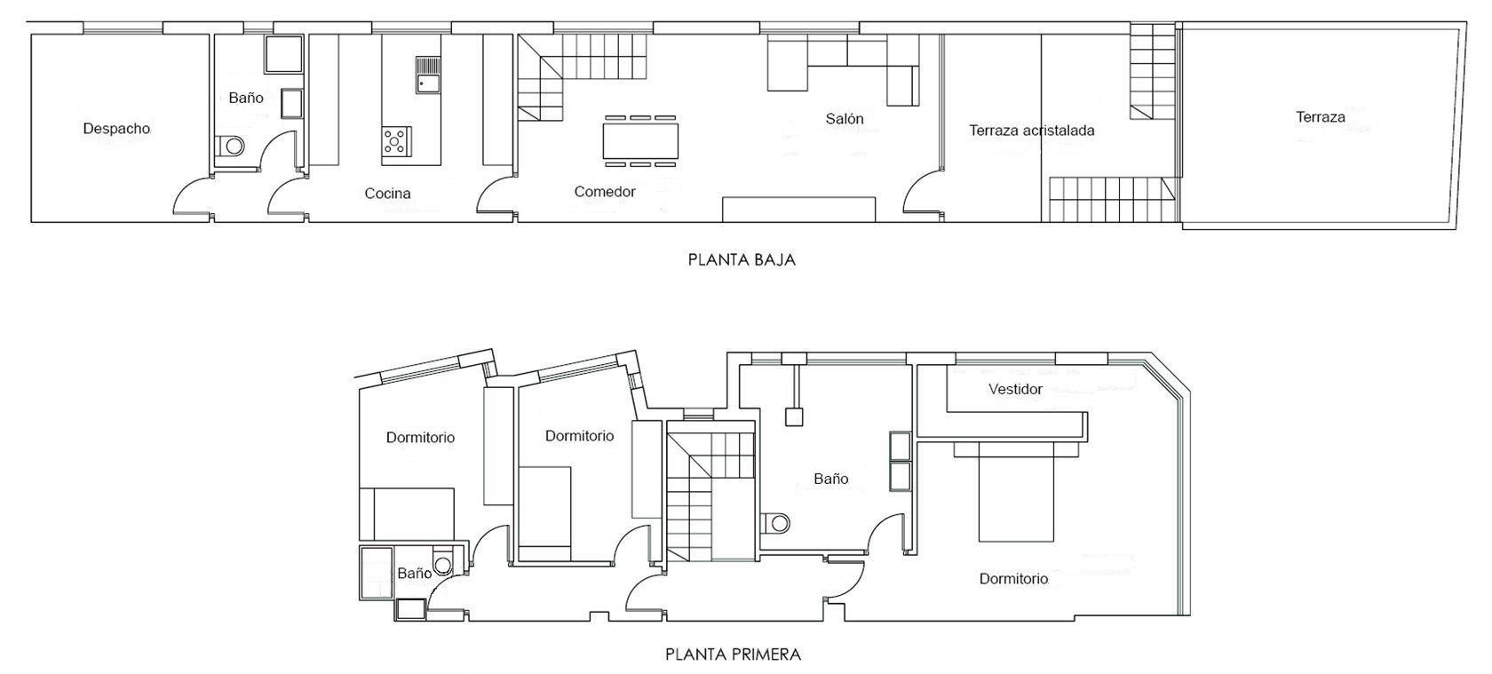
Dwupoziomowy Apartament Przy Plaży z Widokiem na Morze, Tarasami i Parkingiem! Przestronny i jasny apartament dwupoziomowy z prywatnym wejściem, kilkoma tarasami i niesamowitym widokiem na morze — zaledwie kilka kroków od plaży Playa del Cura. W cenie miejsce parkingowe. Na parterze: zadaszony taras zimowy, przestronny taras zewnętrzny (20 m²), salon z jadalnią, duża kuchnia z wyspą, jedna sypialnia oraz łazienka z prysznicem. Na piętrze: główna sypialnia z łóżkiem typu king size, prywatna łazienka z prysznicem i wanną oraz jasna garderoba z oknem. Do tego dwie dodatkowe sypialnie i trzecia łazienka z prysznicem. W pełni umeblowane, klimatyzowane, w doskonałym stanie – idealne do zamieszkania na stałe lub na wakacje. Najważniejsze zalety: – Pierwsza linia brzegowa z widokiem na morze – Prywatne wejście i dwie kondygnacje – 4 sypialnie, 3 łazienki – Główna sypialnia z garderobą i oknem – Duże, słoneczne tarasy tuż przy plaży – Parking w cenie – Gotowe do zamieszkania Nie przegap tej wyjątkowej okazji – skontaktuj się z nami już dziś, aby dowiedzieć się więcej lub umówić się na prezentację!
Adres
- 
            Adres: Playa Del Cura
 - 
            Miasto: Torrevieja
 - 
            Region: Alicante
 - 
            Kraj: Hiszpania
 
Szczegóły
Updated on 26 października, 2025 at 12:28 am- 
                    ID nieruchomości MLSC758383
 - 
                    Cena 489,000 €
 - 
                    Wielkość nieruchomości 180 m²
 - 
                    Sypialnie 4
 - 
                    Łazienki 3
 - 
                    Typ nieruchomości Duplex
 - 
                    Status nieruchomości Rynek wtórny
 
Klasa energetyczna
- 
                Klasa energetyczna: X
 
- A+
 - A
 - B
 - C
 - D
 - E
 - F
 - G
 - H
 
                
                
                
                
                
                
                
                
                
                
                
                
                
                
                
                
                
                
                
                
		
		
		
				
						

















