SP1342 Nowe Apartamenty Z Widokiem Na Morze Na Sprzedaż W Torremolinos, Costa Del Sol
- 440,000 €
SP1342 Nowe Apartamenty Z Widokiem Na Morze Na Sprzedaż W Torremolinos, Costa Del Sol
- 440,000 €
Przegląd
- Apartment
Opis
Nowe apartamenty z widokiem na morze na sprzedaż w Torremolinos, Costa del Sol
Ekskluzywne, nowoczesne rezydencje w doskonałej lokalizacji
Odkryj tę wyjątkową nową inwestycję w Torremolinos, położoną w jednym z najbardziej dynamicznych i poszukiwanych miast na Costa del Sol. Kompleks położony jest na wzniesieniu, z widokiem na piękny śródziemnomorski las sosnowy, a większość mieszkań oferuje wspaniałe widoki na morze. Zaledwie 1500 metrów od plaży i kilka minut spacerem od centrum miasta, ten projekt mieszkaniowy łączy w sobie spokój, wygodę i nadmorski styl życia.
Nowoczesne domy z przestronnymi tarasami
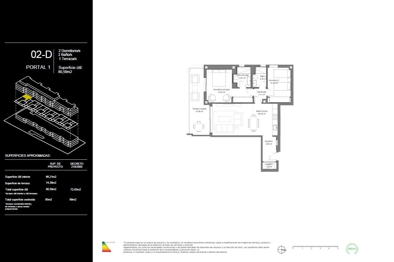
Inwestycja obejmuje nowoczesne apartamenty z 2 lub 3 sypialniami i 2 łazienkami, w tym jedną łazienką przy sypialni. Każdy dom został zaprojektowany tak, aby zapewnić maksymalny komfort, jasność i styl, z dużymi tarasami, które płynnie rozszerzają przestrzeń mieszkalną i pozwalają mieszkańcom cieszyć się łagodnym klimatem Andaluzji przez cały rok.
Zbudowane z najwyższej jakości materiałów, te apartamenty i penthouse’y stanowią idealne połączenie elegancji i funkcjonalności. Są idealne, niezależnie od tego, czy szukasz głównego miejsca zamieszkania, domu wakacyjnego, czy bezpiecznej inwestycji w nieruchomości na Costa del Sol.
Wyjątkowe udogodnienia wspólne
Mieszkańcy będą mogli korzystać z najwyższej klasy udogodnień zaprojektowanych z myślą o relaksie, dobrym samopoczuciu i produktywności.
Kryte spa z podgrzewanym basenem, sauną i strefą prysznicową
W pełni wyposażona designerska siłownia
Pomieszczenie coworkingowe z kuchnią w stylu biurowym i toaletami
Prywatne miejsce parkingowe i schowek w cenie
Udogodnienia te tworzą kompletne doświadczenie mieszkaniowe, które zwiększa komfort i sprzyja budowaniu społeczności.
Mieszkaj w jednym z najbardziej tętniących życiem miast na Costa del Sol
Torremolinos słynie z kosmopolitycznej atmosfery, pięknych plaż, doskonałych restauracji i bogatej oferty rekreacyjnej. Jego strategiczne położenie zapewnia doskonałe połączenia komunikacyjne z miastem Malaga i całym regionem, co czyni je jednym z najlepszych miejsc do życia lub inwestowania na Costa del Sol.
Odległości do najważniejszych punktów
Plaża Torremolinos: 1,5 km
Lotnisko Malaga-Costa del Sol: 7 km
Centrum Malagi: 14 km
Pola golfowe: 5–8 km
Puerto Marina w Benalmádena: 6 km
Twoje nowe życie na Costa del Sol czeka
Ciesz się komfortem, designem i śródziemnomorskim stylem życia w niezrównanej okolicy.
Skontaktuj się z nami już dziś, aby umówić się na wizytę i zapewnić sobie nowy dom z widokiem na morze w Torremolinos.
865
Adres
-
Adres: Recinto Ferial
-
Miasto: Torremolinos
-
Region: Málaga
-
Kod pocztowy: 29620
-
Obszar: Costa del Sol
-
Kraj: Hiszpania
Szczegóły
Updated on 9 kwietnia, 2026 at 2:36 pm-
ID nieruchomości SP1342
-
Cena 440,000 €
-
Wielkość nieruchomości 89 m²
-
Sypialnie 2
-
Łazienki 2
-
Typ nieruchomości Apartment
-
Status nieruchomości Rynek pierwotny
Dodatkowe informacje
-
Basen 1
-
Taras (m2) 14
-
Powierzchnia użytkowa (m2) 72
-
Odległość od plaży (m) 1500
Klasa energetyczna
-
Klasa energetyczna: A
- A+
- | Klasa energetyczna AA
- B
- C
- D
- E
- F
- G
- H















