N9327 Nowoczesna, Nowo Wybudowana Willa Nad Morzem W Javea
- 1,450,000 €
N9327 Nowoczesna, Nowo Wybudowana Willa Nad Morzem W Javea
- 1,450,000 €
Przegląd
- Villa
Opis
Nowoczesna, nowo wybudowana willa nad morzem w Javea
Ekskluzywne życie w stylu śródziemnomorskim w Javea
Odkryj tę wspaniałą, nowoczesną willę położoną w jednej z najbardziej poszukiwanych i spokojnych dzielnic Javea, zaledwie 800 metrów od morza. Położona wśród sosen, w pobliżu słynnych Cala de la Barraca i Cala del Portixol, rezydencja ta oferuje wyjątkowy styl życia w otoczeniu natury i piękna wybrzeża. Javea, położona na Costa Blanca między Alicante a Walencją, znana jest z krystalicznie czystej wody, uroczej starówki i łagodnego klimatu przez cały rok, co czyni ją jednym z najbardziej pożądanych miejsc w basenie Morza Śródziemnego.
Elegancki design i jasne, otwarte przestrzenie
Zaprojektowana z myślą o komforcie i stylu, willa charakteryzuje się nowoczesną architekturą z miękkimi liniami, dużymi oknami i płynną integracją wnętrza z otoczeniem zewnętrznym. Naturalne światło rozlewa się na każdy zakątek, tworząc ciepłą i przyjazną atmosferę, idealną zarówno do życia, jak i rozrywki.
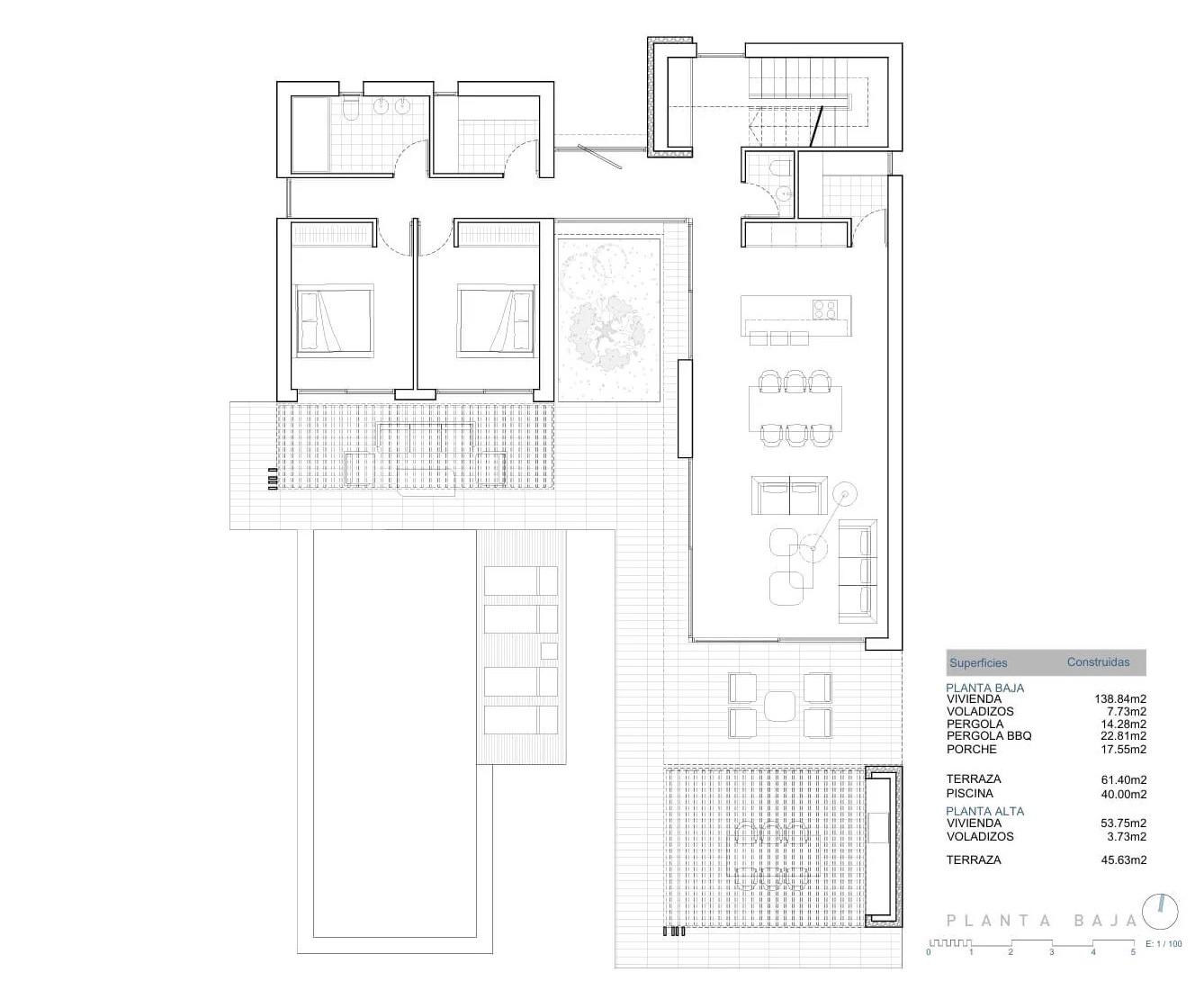
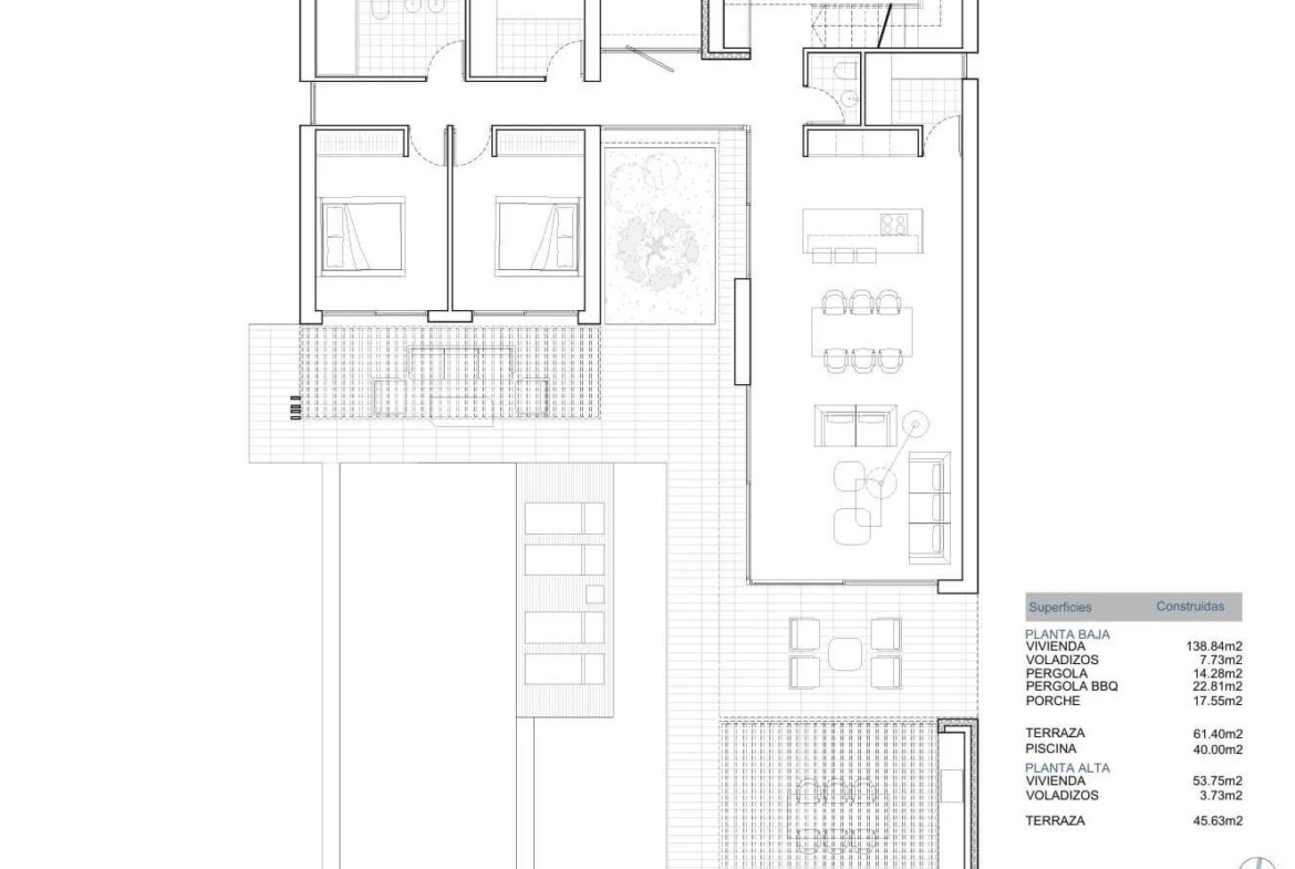
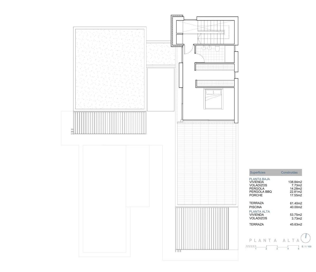
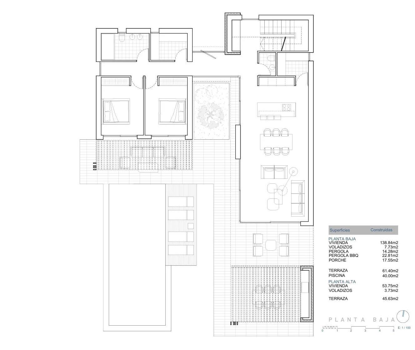
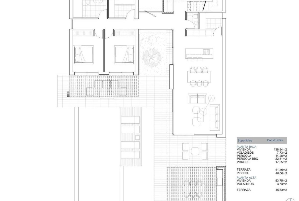
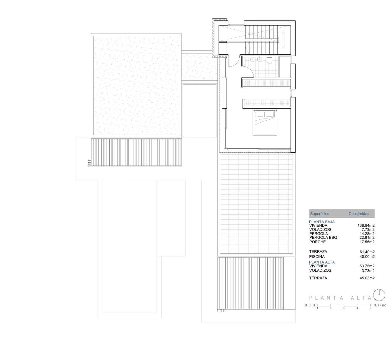
Willa jest rozmieszczona na dwóch piętrach i obejmuje
Otwartą część dzienną i jadalnię z bezpośrednim dostępem do tarasów i basenu
W pełni umeblowaną kuchnię o otwartej koncepcji
3 sypialnie i 2 łazienki oraz 1 toaletę dla gości
Pralnię i spiżarnię
Prywatny ogród, tarasy i basen z letnią kuchnią
Prywatny apartament główny i styl życia na świeżym powietrzu
Na parterze znajdują się dwie sypialnie, łazienka i przestronne pomieszczenia socjalne. Na piętrze główna sypialnia stanowi prywatną oazę spokoju z łazienką, przestronną garderobą i tarasem o powierzchni 45 m2, idealnym do podziwiania wschodów słońca i cieszenia się śródziemnomorską bryzą. Przestrzeń zewnętrzna została zaprojektowana z myślą o relaksie i obejmuje prywatny basen, tarasy słoneczne oraz bujne otoczenie, które zapewnia spokój i prywatność.
Doskonała lokalizacja na północnym wybrzeżu Costa Blanca
Javea oferuje wyjątkowy styl życia z pięknymi plażami, szlakami turystycznymi, marinami, polami golfowymi i wykwintnymi restauracjami. Miasto znajduje się 92 km od Alicante i 105 km od Walencji.
Najważniejsze odległości
Plaża i Cala del Portixol: 0,8 km
Port i marina w Javea: 8 km
Klub golfowy Javea: 10 km
Lotnisko w Alicante: 100 km
Lotnisko w Walencji: 125 km
Twój śródziemnomorski dom czeka
Niezależnie od tego, czy szukasz stałego miejsca zamieszkania, luksusowego miejsca na wakacje, czy też inwestycji premium, ta willa zapewnia prywatność, komfort i wyjątkowe położenie nad brzegiem morza. Skontaktuj się z nami już dziś, aby uzyskać więcej informacji lub umówić się na obejrzenie tej ekskluzywnej, nowoczesnej nieruchomości w Javea.
Adres
-
Adres: La Cala
-
Miasto: Jávea Xàbia
-
Region: Alicante
-
Kod pocztowy: 03738
-
Obszar: Costa Blanca North
-
Kraj: Hiszpania
Szczegóły
Updated on 10 kwietnia, 2026 at 11:01 am-
ID nieruchomości N9327
-
Cena 1,450,000 €
-
Wielkość nieruchomości 210 m²
-
Powierzchnia gruntu 1000 m²
-
Sypialnie 3
-
Łazienki 2
-
Typ nieruchomości Villa
-
Status nieruchomości Rynek pierwotny
Dodatkowe informacje
-
Basen 1
-
Taras (m2) 105
-
Powierzchnia użytkowa (m2) 160
-
Odległość od plaży (m) 800
Klasa energetyczna
-
Klasa energetyczna: B
- A+
- A
- | Klasa energetyczna BB
- C
- D
- E
- F
- G
- H



